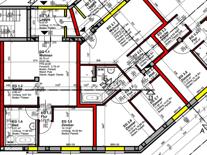
das 4-geschossige mehrfamilienhaus nutzt bisher das winkelförmige erdgeschoss ausschließlich als großflächiges ladengeschäft. die geplante umnutzung behält die eingangsfront des ladens zur kasteller geschäftsstraße, der mainzer straße bei, verringert jedoch dessen fläche deutlich. vom hof des gebäudes, wo auch die treppenhäuser liegen, werden die 4 entstehenden wohnungen ebenerdig und barrierefrei erschlossen.
alle wohnungen sind nach dem amerikanischen prinzip aufgebaut: vom zugang gelangt man direkt in den wohnraum, an den die küchen angeschlossen sind. zum teil dienen die in der ersten gebäudeschicht eingefügten abschließbaren loggien als kombinerter zugang und freibereich/terrasse. die küchen können offen zum wohnraum sein, durch schiebetüren abgeteilt werden oder vollständig räumlich getrennt werden.
die küchen sind wie einige bäder und gesonderte wcs im gebäudeinneren angeordnet, um bei der ungünstigen gebäudedisposition die bestmögliche orientierung der schlafräume und zimmer an der nordfassade zu ermöglichen. die fenster dieser räume haben raumseitig eine normal brüstung, reichen aber straßenseitig bis auf den boden. daher ist der einsatz von verspiegeltem glas vorgesehen, um einblicke durch passanten zu verhindern.




