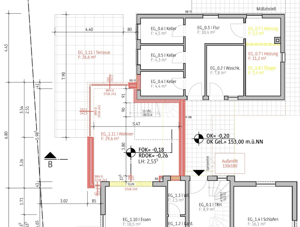
die bestehende erdgeschosswohnung wird über einen großformatigen durchbruch mit der erweiterung verbunden. zwei stufen nach unten markieren den übergang in den neuen wohnraum und differenzieren bestand und neubau räumlich. der erweiterte wohnbereich öffnet sich über eine großzügige eckverglasung zum terrassenraum; eine schiebetür ermöglicht den direkten austritt ins freie.
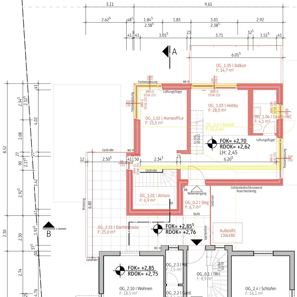
ein teil des wohnraums ist als vertikale raumerweiterung ausgebildet: ein atriumartiger luftraum mit holztreppe verbindet das erdgeschoss mit der obergeschossigen erweiterung. dieser treppenraum wird über ein großzügiges oberlicht von oben belichtet und bildet als zentrales raumereignis die »lunge« des entwurfs. der kupferfarbene wandanstrich verstärkt die atmosphärische wirkung des atriums und setzt einen bewussten farblichen akzent.
im obergeschoss erweitert sich der raum zu einem arbeits- und wohnbereich mit rahmenloser eckverglasung und blick in den grünraum. von hier aus ist die dachterrasse direkt erschlossen. seitlich angeschlossen und zusätzlich über einen steg mit dem treppenhaus des bestandsgebäudes verbunden liegt die bei bedarf abtrennbare einliegerwohnung mit offenem wohn- und küchenbereich, einer eigenen dachterrasse zum grünraum sowie badezimmer. eine weitere holztreppe führt auf eine offene empore, die den durch die konstruktion determinierten innenraum als zentralen entwurfsbaustein in seiner gesamten ausdehnung erlebbar macht und die architektonische idee des offenen, fließenden raumgefüges fortschreibt.
die dachkonstruktion folgt einem konstruktiv reduzierten prinzip: brettsperrholzplatten lagern auf in der wandkonstruktion integrierten fußpfette auf. die firstpfette ist als stahlbauteil in form eines mercedes-sterns ausgebildet und oben aufgesetzt, sodass im innenraum die reine holzkonstruktion sichtbar bleibt. die gedämmte dachfläche ist gartenseitig mit anthrazitfarbenen ziegeln gedeckt; die nach süden geneigte dachfläche integriert eine indach-photovoltaikanlage zur unterstützung der wärmepumpenheizung und der trinkwarmwasserbereitung. die erweiterung ist vollständig mit fußbodenheizung ausgestattet.
neben architekturplanung und bauüberwachung übernahm unser büro auch die energieberatung (isfp), die energetische fachplanung sowie die baubegleitung inklusive förderanträge und abrechnung. der erweiterungsbau erreicht die energieeffizienzklasse a+ mit einem primärenergiebedarf von 27 kwh/m²a und entspricht damit einem kfw-effizienzhaus 55 ee.
die ausführung erfolgte ausschließlich durch lokale handwerksbetriebe. die eingespielte zusammenarbeit der beteiligten unternehmen ermöglichte einen präzisen und reibungslosen bauablauf.








